您好,欢迎您访问 无锡恒日精自动化设备有限公司 的官方网站!
销售服务热线: 0510-83592636 83592639
螺杆冷水机
NICC-S系列中央冰水系统主机均采用意大利菜弗康半密闭式双 螺杆压缩机,具有的技术特性,分为单压缩机和双压缩机二种机种。且适用于R22、R407C、R134a等多种冷媒。高效率卧式売 管式冷凝器与蒸发器均有压力容器制造许可,换热稳定,维修 保养方便。的微电脑控制器,功能强大,采用高速嵌入式微处 理器,性能远高于同业中使用的单芯片机。
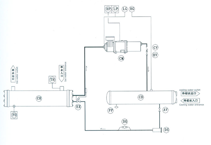
一、单机系列工作原理图
![]() |
|
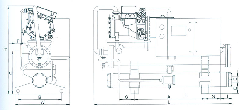
二、单机系列尺寸结构图

三、双机系列工作原理图
![]() |
|
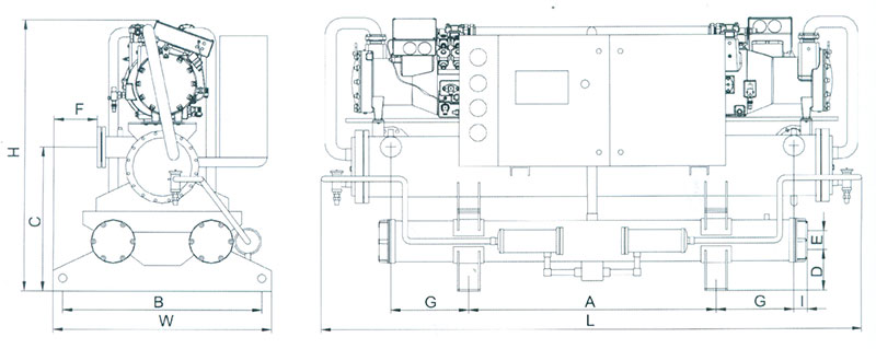
四、双机系列尺寸结构图

| 型号 \项目 | NICC- 40S | NICC- 50S | NICC- 60S | NICC- 70S | NICC- 80S | NICC- 100S | NICC- 120S | NICC- 140S | NICC- 180S | NICC- 21 OS | NICC- 240S | ||
| 电源 | - | 3φ-400V-50HZ | |||||||||||
| 制冷量 | kcal/h | 113,500 | 141,900 | 166,000 | 191,80C | I 220,200 | 272,600 | 312,200 | 360,300 | 470,400 | 541,800 | 621,800 | |
| kw | 132 | 165 | 193 | 223 | 256 | 317 | 363 | 419 | 547 | 630 | 723 | ||
| 消耗电力 | kw | 31 | 38 | 43 | 51 | 58 | 68 | 80 | 90 | 115 | 136 | 153 | |
| 运转电流 | A | 54 | 66 | 75 | 87 | 95 | 116 | 136 | 153 | 186 | 226 | 252 | |
| 起动电流 | A | 218D/ 411DD |
269D/ 508DD |
290D/ 485DD |
350D/ 585DD |
423D/ 686DD |
520D/ 801DD |
612D/ 943DD |
665D/ 1023DD |
465D/ 1442DD |
586D/ 1853DD |
650D/ 2029DD |
|
| 容量控制 | % | 100-75-50-25-0 | |||||||||||
| 压缩机 | 型式 | - | 半密闭双螺杆式 | ||||||||||
| 数量 | - | 1 | |||||||||||
| 起动方式 | - | 分绕组 | Y-a | ||||||||||
| 油加热器 | w | 200 | 300 | ||||||||||
| 冷冻油 | 种类 | - | B320SH | ||||||||||
| 填充量 | L | 9 | 15 | 22 | 28 | ||||||||
| 冷媒 | 种类 | - | R-22 | ||||||||||
| 填充量 | kg | 21 | 26 | 30 | 35 | 39 | 46 | 54 | 61 | 78 | 92 | 104 | |
| 节流方式 | - | 感温式外部均压膨胀阀 | |||||||||||
| 蒸发器 | 型式 | - | 壳管式高效换热器 | ||||||||||
| 冷冻水量 | m3/h | 23 | 28 | 33 | 38 | 44 | 55 | 62 | 72 | 94 | 108 | 124 | |
| 压力损失 | kPa | 54 | 54 | 54 | 57 | 57 | 57 | 59 | 59 | 62 | 62 | 67 | |
| 水管接口 | PT | 3" | 3" | 3" | 4" | 4" | 4" | 4" | 4" | 5" | 5" | 5" | |
| 冷凝器 | 型式 | - | 壳管式高效换热器 | ||||||||||
| 冷却水量 | m3/h | 29 | 37 | 43 | 50 | 57 | 71 | 81 | 94 | 122 | 141 | 162 | |
| 压力损失 | kPa | 49 | 51 | 51 | 54 | 54 | 57 | 57 | 57 | 59 | 59 | 62 | |
| 水管接口 | PT | 2-1/2" | 3" | 3" | 3" | 3" | 4" | 4" | 4" | 5" | 5" | 5" | |
| 保护装置 | - | 高低压开关,防冻开关,可熔栓,压缩机热过载保护,电机温度过高保护,排气温度过高保护,水泵热过载保护,油温过高保护,逆却相保护,过欠压保护,冷却水温过离保护,冷冻水流量不足保护,冷却水流量不足保护,冷却塔风机过载保护等。 | |||||||||||
| 外形尺寸 | L | mm | 2170 | 2180 | 2250 | 2860 | 2860 | 2900 | 2910 | 2910 | 2990 | 2990 | 3640 |
| W | mm | 890 | 890 | 890 | 900 | 900 | 1020 | 1020 | 1040 | 1150 | 1150 | 1160 | |
| H | mm | 1410 | 1450 | 1580 | 1650 | 1650 | 1880 | 1900 | 1900 | 2090 | 2090 | 2420 | |
| A | mm | 1100 | 1100 | 1100 | 1200 | 1200 | 1300 | 1300 | 1300 | 1600 | 1600 | 1600 | |
| B | mm | 690 | 690 | 690 | 790 | 790 | 790 | 790 | 790 | 900 | 900 | 980 | |
| C | mm | 690 | 760 | 820 | 860 | 860 | 1000 | 1010 | 1010 | 1120 | 1120 | 1425 | |
| D | mm | 170 | 190 | 240 | 240 | 240 | 270 | 270 | 270 | 240 | 240 | 335 | |
| E | mm | 100 | 120 | 120 | 120 | 120 | 175 | 175 | 175 | 240 | 240 | 250 | |
| F | mm | 80 | 80 | 80 | 125 | 105 | 100 | 100 | 100 | 125 | 125 | 200 | |
| G | mm | 240 | 240 | 230 | 475 | 475 | 400 | 405 | 405 | 245 | 245 | 540 | |
| I | mm | 185 | 200 | 210 | 220 | 215 | 275 | 275 | 275 | 355 | 355 | 390 | |
| 机组重量 | kg | 1020 | 1060 | 1270 | 1370 | 1400 | 1870 | 1980 | 2070 | 2790 | 2910 | 3240 | |
| 运转重量 | kg | 1120 | 1180 | 1420 | 1550 | 1580 | 2100 | 2220 | 2340 | 3120 | 3240 | 3760 | |
| 运转噪音 | dB(A) | 70 | 74 | 78 | 82 | ||||||||
六、双机系列规格型号表
型号\项目 |
NICC- 80SD |
NICC- 100SD |
NICC- 120SD |
NICC- 140SD |
NICC- 170SD |
NICC- 210SD |
NICC- 240SD |
NICC- 270SD |
NICC- 360SD |
NICC- 420SD |
NICC- 480SD |
||
电源 |
- |
3φ-400V-50HZ |
|||||||||||
| 制冷量 |
kcal/h |
226,200 |
283,800 |
331,100 |
383,600 |
440,300 |
547,800 |
623,500 |
721,500 |
940,000 |
1,083,600 |
1,243,600 |
|
kw |
263 |
330 |
385 |
446 |
512 |
637 |
725 |
839 |
1093 |
1260 |
1446 |
||
消耗电力 |
kw |
62 |
76 |
87 |
102 |
115 |
136 |
160 |
180 |
230 |
272 |
305 |
|
运转电流 |
A |
108 |
132 |
149 |
175 |
190 |
232 |
273 |
305 |
373 |
452 |
504 |
|
起动电流 |
A |
218D/ |
269D/ |
290D/ |
350D/ |
423D/ |
520D/ |
612D/ |
665D/ |
465D/ 1442DD |
586D/ 1853DD |
650D/ 2029DD |
|
容量控制 |
% |
100-75-50-25-0 |
|||||||||||
压缩机 |
型式
|
- |
半密闭双螺杆式 |
||||||||||
数量
|
- |
2 |
|||||||||||
起动方式 |
- |
分绕组 |
Y-a | ||||||||||
油加热器 |
w |
200x2 |
300x2 |
||||||||||
冷冻油 |
种类 |
- |
B320SH |
||||||||||
填充量 |
L |
9x2 |
15x2 |
22x2 |
28x2 |
||||||||
冷媒 |
种类 |
- |
R-22 |
||||||||||
填充量 |
kg |
21x2 |
26x2 |
30x2 |
35x2 |
39x2 |
46x2 |
54x2 |
61x2 |
78x2 |
92x2 |
104x2 |
|
节流方式 |
- |
感温式外部均压膨胀阀 |
|||||||||||
蒸发器
|
型式 |
- |
壳管式高效换热器 |
||||||||||
冷冻水量 |
m3/h |
45 |
57 |
66 |
77 |
88 |
110 |
125 |
144 |
188 |
217 |
249 |
|
压力损失 |
kPa |
57 |
57 |
59 |
62 |
62 |
62 |
65 |
65 |
67 |
67 |
69 |
|
水管接口 |
PT |
4" |
4" |
4" |
5" |
5" |
5" |
6" |
6" |
6" |
8" |
8" |
|
冷凝器 |
型式 |
- |
壳管式高效换热器 |
||||||||||
冷却水量 |
m3/h |
59 |
74 |
86 |
100 |
115 |
142 |
162 |
188 |
244 |
282 |
323 |
|
压力损失 |
kPa |
51 |
54 |
59 |
59 |
59 |
62 |
62 |
62 |
65 |
65 |
67 |
|
水管接口 |
PT |
2-1/2"x2 |
3" |
3"x2 |
3"x2 |
3"x2 |
4"x2 |
4"x2 |
4"x2 |
5"x2 |
5"x2 |
6"x2 |
|
保护装置 |
- |
高低压开关,防冻开关,可熔栓,压缩机热过载保护,电机温度过高保护,排气温度过高保护,水泵热过载保护,油温过高保护,逆却相保护,过欠压保护,冷却水温过离保护,冷冻水流量不足保护,冷却水流量不足保护,冷却塔风机过载保护等。 | |||||||||||
| 外形尺寸 | L |
mm |
2850 |
2850 |
3040 |
3130 |
3140 |
3760 |
3760 |
3760 |
4100 |
4100 |
4250 |
W |
mm |
1150 |
1150 |
1250 |
1250 |
1250 |
1400 |
1400 |
1400 |
1600 |
1750 |
1750 |
|
H |
mm |
1450 |
1450 |
1760 |
1790 |
1810 |
2030 |
2040 |
2080 |
2260 |
2290 |
2360 |
|
A |
mm |
1300 |
1300 |
1300 |
1600 |
1600 |
.1600 |
1600 |
1600 |
1600 |
1600 |
1600 |
|
B |
mm |
1040 |
1040 |
1140 |
1140 |
1140 |
1290 |
1290 |
1290 |
1480 |
1630 |
1630 |
|
C |
mm |
770 |
770 |
955 |
970 |
975 |
1085 |
1130 |
1135 |
1240 |
1270 |
1305 |
|
D |
mm |
215 |
215 |
275 |
270 |
270 |
265 |
265 |
265 |
290 |
290 |
290 |
|
E |
mm |
100 |
100 |
120 |
120 |
120 |
175 |
175 |
175 |
240 |
240 |
250 |
|
F |
mm |
230 |
230 |
275 |
300 |
275 |
375 |
375 |
375 |
450 |
450 |
430 |
|
G |
mm |
410 |
410 |
400 |
245 |
400 |
545 |
545 |
545 |
500 |
500 |
775 |
|
I |
mm |
70 |
70 |
245 |
250 |
245 |
265 |
265 |
265 |
100 |
100 |
90 |
|
机组重量 |
kg |
1790 |
1790 |
2340 |
2420 |
2500 |
3580 |
3750 |
3880 |
5050 |
5340 |
5600 |
|
运转重量 |
kg |
1920 |
1970 |
2520 |
2620 |
2710 |
3920 |
4110 |
4250 |
5490 |
5830 |
6260 |
|
运转噪音 |
dB(A) |
72 |
76 |
80 |
84 |
||||||||
七、吊搬运及基础安装工事
1、安装场所的选定
1)请选定得以充分支撑机组运转重量的地面,地面强度需坚固,不易引发共振及噪音的场所。
2)避免装置于风吹雨淋,阳光直射或其它有热源直接辐射到的地方。
3)周围温度为0℃~40℃,相对湿度(RH ) 75%以内,通风良好,沙尘少的场所。
4)距离电源近,施工方便之场所。
5)便于保养检修的场所,请保留图1所示的服务空间,下图中L为机组长度,请参考冰水机组目录,对于预 留冷凝器清洗空间0.8 L,请考虑左右空间。
2、基础台
1 )水泥基础台依机器至运转荷重,于置9.5公里直径(#3)以上之竹节钢筋,间距10公分捆扎排放上下两层。
2)在混凝土楼板上作水泥基座时,必须先将其表面弄成粗糙,清扫干净后,给予充分之水份再施工。
3)水泥基础台使用1:2:4比例之混凝土确实捣实,力求坚固,可依需要之大小数量埋入规定大小数量之锚定基 础螺丝(Anchor Bolt)。基础台表面应粉光及水平。
4)基础台之混凝土,须待完全干固后才能安装机器。
5)基础台四周之排水应良好,不得有积水及影响周围环境之情况发生。
Copyright © 2024 无锡恒日精自动化设备有限公司 All Rights Reserved.未经授权禁止任何方式的复制、抄袭、转载等。
苏公网安备 32020602000618号苏ICP备11022523号-1